2022年9月北京丰台晟泽嘉园共有产权房房源信息(户型图)

➤晟泽嘉园共有产权住房项目概况
丰台区晟泽嘉园共有产权住房项目位于北京市丰台区卢沟桥乡周庄子村,项目四至为:东临规划七里庄中街;南临规划七里庄路;西临规划丰台站北路;北临丰华苑西街8号院。
项目规划总建筑面积约5.2万平方米,其中地上建筑面积约2.7万平方米,共有产权住房住宅建筑面积约2.6万平方米,共4栋住宅楼,项目总套数319套。其中,二居室111套,建筑面积约78-80平方米;三居室208套,建筑面积约88-89平方米。含全装修费用销售均价43000元/平方米(根据具体楼层、朝向在±5%的范围内调整销售价格)。
一、交通路网
(一)公交路线:658路、77路、978路、845路、349路。
(二)交通路线:交通轨道交通:地铁9号线丰台东大街站。
自驾路线:从丰台区丰益桥出发,沿丰管路向西至东大街路,沿东大街路向北至七里庄路,再向西约1公里至项目位置即可。
二、周边配套
1.商业:华堂商场、京客隆购物中心、outlets奥特莱斯、亿客隆、苏宁、乐购、嘉诚购物广场、巴厘岛国际商务酒店、万丰世纪国际酒店、丰台区工人俱乐部、亚澜湾休闲会所等;
餐厅:万丰美食街、中华小吃博物馆、必胜客、麦当劳、京味斋、四海美食、儒宴、孔菜府等。
2.学校:首都师范大学附属丽泽中学、北京十二中、丰台六小、师范附小。
3.幼儿园:机关幼儿园、丰台一幼。
4.银行:中国银行、中国建设银行、中国农业银行、工商银行、北京银行、民生银行等。
5.邮局:邮政储蓄所。
6.医院:解放军307医院、302医院、解放军总医院、丰台医院。
7.休闲娱乐:丰台体育中心、丰台公园、万丰公园。
三、基础数据
本项目共有产权住房地上建筑面积约27598.48平方米,住宅共4栋楼,楼号分别为6-2#住宅楼、6-3#住宅楼、6-5#住宅楼、6-6#住宅楼。
6-2#住宅楼共2个单元,建筑层数为地下4层,地上8层,建筑高度为24.4米,层高均为2.9米,地上全部为共有产权住房。
6-3#住宅楼共2个单元,建筑层数为地下4层,地上18层,建筑高度为53.4米,层高均为2.9米,地上全部为共有产权住房。
6-5#住宅楼共1个单元,建筑层数为地下4层,地上27层,建筑高度为79.5米,层高均为2.9米,地上全部为共有产权住房。
6-6#住宅楼共1个单元,建筑层数为地下4层,地上27层,建筑高度为79.5米,层高均为2.9米,地上包含物业服务用房100平方米,其余全部为共有产权住房。
梯户比:6-2#住宅楼为一梯两户、6-3#住宅楼为两梯两户,6-5#住宅楼、6-6#住宅楼为两梯四户。
户型尺寸:
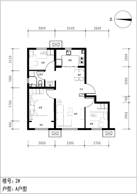
A户型(三居室):约89平方米,32户,位于2#楼一单元、二单元。窗户为塑钢材质,起居室窗洞口宽约1.8米,高约1.7米;主卧室窗洞口宽约1.5米,高约1.7米,阳台门洞口宽约2.2米,阳台门洞口高约2.2米;次卧室窗洞口宽约1.2米,高约1.4米或1.7m;厨房窗洞口宽约0.75米,高约1.4米;卫生间窗洞口(如有)宽约0.6米,高约1.4米,仅端单元卫生间设有外窗。
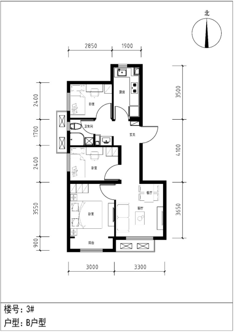
B户型(三居室):约89平方米,34户,位于3#楼一单元、二单元。窗户为塑钢材质,起居室窗洞口宽约1.8米,高约1.7米;主卧室窗洞口宽约1.5米,高约1.7米,阳台门洞口宽约2.2米,阳台门洞口高约2.2米;次卧室窗洞口宽约1.2米,高约1.4米;厨房窗洞口宽约0.75米,高约1.4米;卫生间窗洞口宽约0.6米,高约1.4米。
B户型大样:
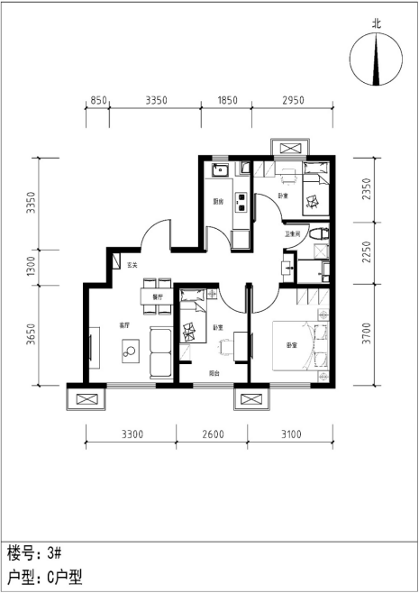
C户型(三居室):约89平方米,36户,位于3#楼一单元、二单元。窗户为塑钢材质,起居室窗洞口宽约1.8米,高约1.7米;主卧窗洞口宽约1.5米,高约1.7米;次卧室一窗洞口宽约1.5米,高约1.7米,阳台洞口宽约1.6米,高约2.2米;次卧室二窗洞口宽约1.2米,高约1.4米;厨房窗洞口宽约0.75米,高约1.4米;卫生间为暗卫。
C户型大样:
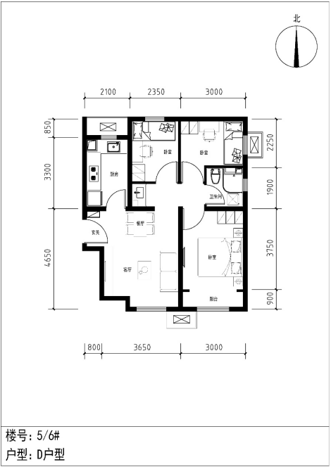
D户型(三居室):约88平方米,106户,位于5#楼、6#楼。窗户为塑钢材质,起居室窗洞口宽约1.4米,高约1.7米;主卧室内窗洞口宽约1.5米,高约1.7米,阳台洞口宽约2.2米,高约2.2米;次卧室一窗洞口宽约0.9米,高约1.4米;次卧室二窗洞口宽约0.9米,高约1.4米;厨房窗洞口宽约0.75米,高约1.4米;卫生间窗洞口宽约0.6米,高约1.4米。
D户型大样:
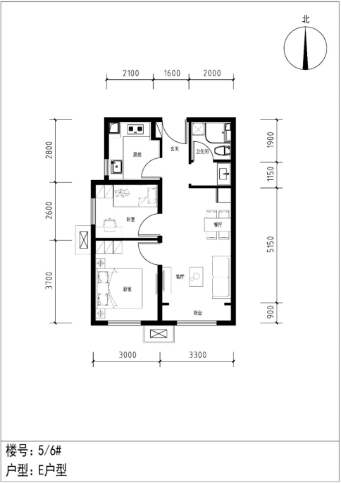
E户型(两居室):约80平方米,108户,位于5#楼、6#楼。窗户为塑钢材质,起居室窗洞口宽约1.8米,高约1.7米,阳台洞口宽约2.5米,高约2.2米;主卧室窗洞口宽约1.5米,高约1.7米;次卧室窗洞口宽约1.2米,高约1.4米;厨房窗洞口宽约0.75米,高约1.4米;卫生间为暗卫。
E户型大样:
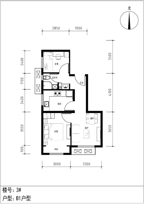
B-1户型(两居室):约78平方米,2户,位于3#楼一单元、二单元。窗户为塑钢材质,起居室窗洞口宽约1.8米,高约1.7米;主卧室窗洞口宽约1.5米,高约1.7米,阳台门洞口宽约2.2米,阳台门洞口高约2.2米;次卧室窗洞口宽约1.2米,高约1.4米;厨房窗洞口宽约1.2米,高约1.4米;卫生间窗洞口宽约0.6米,高约1.4米。
B-1户型大样:
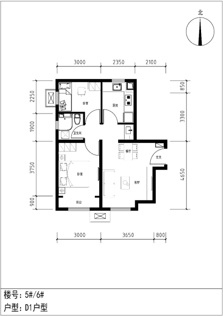
D-1户型(两居室):约78平方米,1户,位于5#楼。窗户为塑钢材质,起居室窗洞口宽约1.4米,高约1.7米;主卧室内窗洞口宽约1.5米,高约1.7米,阳台洞口宽约2.2米,高约2.2米;次卧室窗洞口宽约0.9米,高约1.4米;高约1.4米;厨房窗洞口宽约0.9米,高约1.4米;卫生间窗洞口宽约0.6米,高约1.4米。
D-1户型大样:
户型图源为:北京市丰台区人民政府
注:以上数据最终以规划及住建委等相关部门审批结果为准,如有变更我司将及时公告。
➤
