2022年10月北京昌平冠芳园公租房项目信息(附价格)

冠芳园公租房项目基本情况介绍
一、基本信息
楼盘类型:公共租赁住房
项目位置:北京市昌平区定泗路15号院1号楼
装修标准:精装修
租金单价:公租租金标准43元/建筑平米·月(不分楼层、朝向),市场租金标准64元/建筑平米·月(不分楼层、朝向)。
价格说明:租金单价中包含物业费,不包含供暖费、水费、电费、燃气费、电话费、上网费、有线电视初装费及收视费等。
供暖方式:小区集中供暖,30元/建筑平方米·供暖季。
房源数量:可配租房源共计6套,均为大套型。
户型面积:大套型:61.81㎡-62.95㎡(二居)
二、项目配套情况
周边交通:项目位于定泗路西段,距离京藏高速开车5分钟左右,距离地铁8号线朱辛庄站约2公里,主要公交线路和站点:周边交通:922路、昌22路、昌19路、专49路(豆各庄新村站)、专50路(豆各庄新村南站)、463路、地铁昌平线朱辛庄站。
小区内配套:文体活动站、社区居民委员会、老年驿站等。
周边公共设施:
教育资源:豆各庄幼儿园、豆各庄小学、昌平区七里渠中心小学、沙河中学、回龙观中学;
生活购物:超市发、永旺购物中心
医疗保健:沙河医院、积水潭医院(回龙观分院)
三、户型详细信息
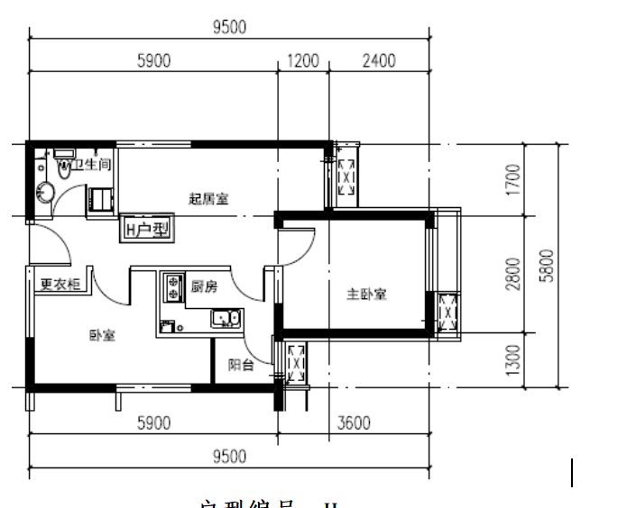
大套型
户型编号:H
居室类型:二居室
建筑面积:61.81㎡-62.32㎡
房屋租金:约2657.83-2679.76元/月
房屋朝向:东
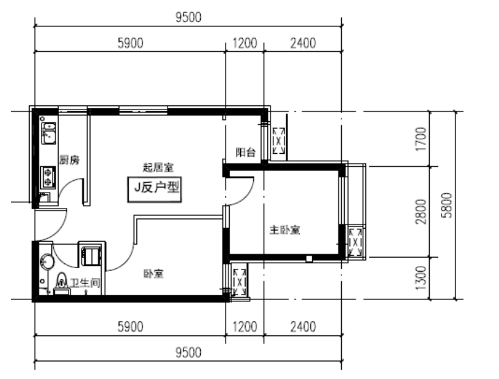
大套型
户型编号:H反
居室类型:二居室
建筑面积:62.23㎡-62.95㎡
房屋租金:2675.89-2706.85元/月
房屋朝向:东
大套型
户型编号:J反
居室类型:二居室
建筑面积:62.48㎡
房屋租金:2686.64元/月
房屋朝向:东北
》》
》》
