温州龙港2021年人才住房配售房源信息表+户型图+地址电话

关于龙港市2021年人才住房配售房源的公告
为切实做好龙港市2021年人才住房配售工作,根据《龙港市人才住房保障实施办法(试行)》(龙办发〔2020〕217号)文件有关规定,现将龙港市2021年度人才住房配售房源公告如下:
一、配售房源情况
龙港市2021年人才住房配售房源共两个地块,分别为:
1.龙港市新城XC-6-21地块(锦悦府)18#楼,建筑面积约3014平方米,套数27套,均为毛坯房。该项目由苍南首瑞置业有限公司开发建设,计划于2022年5月31日交付。地块坐落于龙港市新城城南大道南侧、启源路东侧、世纪大道西侧、霞飞路北侧。
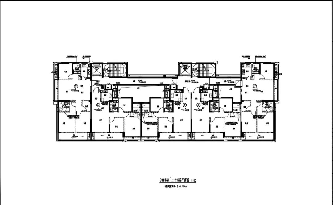
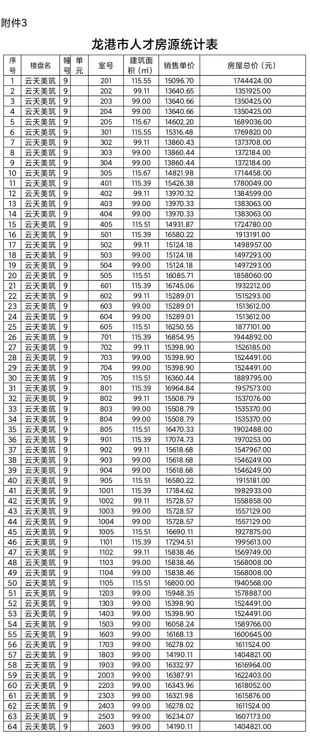
2.龙港市新城XC-6-23地块(雲天美筑)9#楼,建筑面积约6666平方米,套数64套,均为毛坯房。该项目由温州景祥置业有限公司开发建设,计划于2023年6月30日开始交付使用。地块坐落于龙港市新城开元路以北、霞飞路以南、启源路以东、世纪大道以西。
具体房源信息见下表:
二、优惠价格
(一)申购人按人才层次类别享受相应面积和折扣优惠。B类和C类人才配售面积为140平方米,购买价格为备案价50%;D类和E类人才和其他“龙城鲲鹏”配售面积为120平方米,购买价格为备案价60%;具有硕士研究生以上学历、全日制本科或具有《温州市紧缺专业人才需求目录》范围的中级以上专业技术职称、技师以上职业资格的人才配售面积为90平方米,购买价格为备案价70%;其他符合条件的人才配售面积为90平方米,购买价格为备案价80%。
(二)申购人选购的配售房源户型面积少于申购人所属层次类别配售面积标准时,不再给予任何形式的补差;申购人选购的配售预售商品房房源面积超过申购人所属层次类别配售面积标准的,超出面积部分按照物价备案的优惠方案计收购房款。
(三)夫妻双方均符合配售条件的,主申购人选购的配售预售商品房房源面积超过申购人所属层次类别配售面积标准的按以下方式计算购房款:配售房源面积未超出主申购人上一层次类别配售面积标准的,超出面积部分按夫妻较低的层次类别折扣标准计收购房款;超出上一层次人才类别配售面积标准的,超出上一层次配售标准面积部分按照物价备案的优惠方案计收购房款。
三、应知事项
(一)本公告人才住房配售房源户型面积为预测面积,以最终实测面积为准;备案单价或待定以商品预售方案公布的价格为准;展示的户型图仅供参考,最终以商品房买卖合同及附件和政府最终审批文件规定为准。
(二)锦悦府项目详情请咨询该项目楼盘售楼处,地址:国鸿锦悦府(世纪大道与文晖路交叉口),售楼处电话:0577-55589999。
雲天美筑项目详情请咨询该项目楼盘售楼处,地址:雲天美筑销售中心(世纪大道与霞飞路交叉口),售楼处电话:0577-68097777。
附件:1.楼盘总平面效果图
2.户型图
3.人才住房配售房源明细表
龙港市委人才工作领导小组办公室
龙港市自然资源与规划建设局
2021年11月8日
附件1
锦悦府楼盘总平面效果图
雲天美筑楼盘总平面效果图
附件2
锦悦府政策性住房 户型图
雲天美筑政策性住房 户型图

