2022年10月北京昌平TBD云集园公租房房源信息介绍

昌平区TBD云集园公共租赁住房项目基本情况介绍
一、基本信息
楼盘类型:公共租赁住房
项目位置:北京市昌平区北七家镇七北路42号院
装修标准:精装修
租金单价:35元/建筑平米·月(不分楼层、朝向)
价格说明:租金单价中包含物业费,不包含供暖费、水费、电费、燃气费、电话费、上网费、有线电视初装及收视费等。
供暖方式:小区集中供暖,30元/建筑平方米·供暖季。
房源数量:本次可配租房源共计4套,其中,中套型4套。
户型面积:中套型:45.89㎡-47.56㎡(零居)
二、项目配套情况
周边交通:公交:417路、607路、871路、996路、快速直达专线36路、快速直达专线163路(王府街站),临近地铁八号线朱辛庄站。
周边公共设施:
教育资源:王府学校、白庙小学、平西府中心小学、北京邮电大学(宏福校区)等。
休闲购物:物美超市、永辉超市。
医疗保健:昌平区中西医结合医院分院、宏福苑社区卫生服务站、北京新宇医院等。
休闲娱乐:温都水城、半塔郊野公园等。
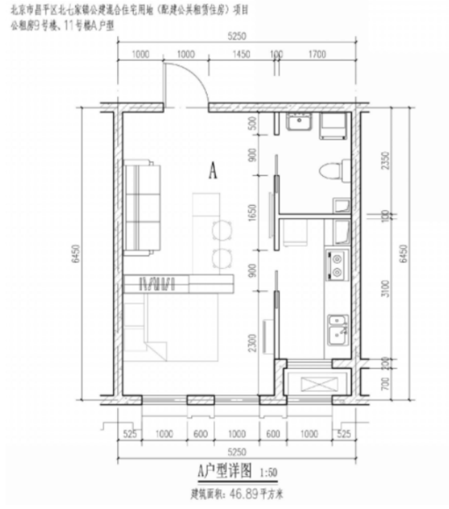
三、户型详细信息
户型介绍:共计1种户型(中套型1种)。
户型示意图如下:
中套型
户型编号:A、A反
居室类型:零居
建筑面积:约45.89㎡-47.56㎡
房屋租金:约1606.15-1664.6元/月
房屋朝向:东、西
》》
》》
