2022年10月北京昌平悦府家园公租房项目介绍(附价格)

2022年10月北京昌平悦府家园公租房项目介绍
一、基本信息
楼盘类型:公共租赁住房
项目位置:北京市昌平区东小口镇
装修标准:精装修
租金单价:公租48元/建筑平米·月(不分楼层、朝向),市场63.2元/建筑平米·月(不分楼层、朝向)。
价格说明:租金单价中包含物业费,不包含供暖费、水费、电费、燃气费、电话费、上网费、有线电视初装费及收视费等。
供暖方式:小区集中供暖,30元/建筑平方米·供暖季。
房源数量:可配租房源共计48套,其中,小套型24套、中套型24套。
户型面积:中套型:51.31㎡-55.74㎡(两居)
小套型:42.71㎡-43.82㎡(一居)
二、项目配套情况
周边交通:公交460、461(地铁平西府站)、地铁8号线(平西府站)。
小区内配套:居委会、清华附属小学、幼儿园等。
周边公共设施:教育资源:培杰幼儿园、爱蕾幼儿园、快乐宝贝幼儿园、首都师范附属小学、霍营中心小学、昌平第二实验小学、昌平第二中学、回龙观中学。
医疗保健:回龙观镇医院、北京京都儿童医院、积水潭医院分院、北京长城中医医院。
三、户型详细信息
中套型
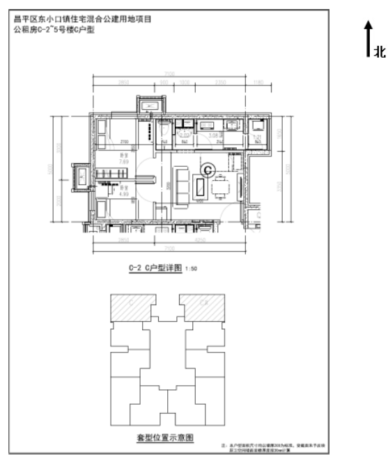
户型编号:C户型
居室类型:二居室
建筑面积:51.45平米
房屋朝向:东北/西北
房屋租金:2469.6元/月
中套型
户型编号:F
居室类型:二居室
建筑面积:约55.54㎡--55.74㎡
房屋朝向:东南/西南
房屋租金:约2665.92元/月—2675.52元/月
中套型
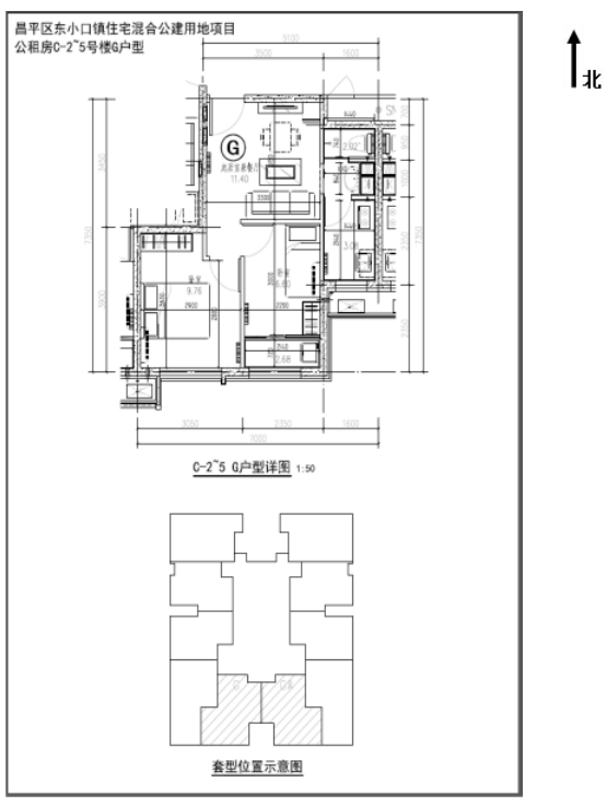
户型编号:G户型
居室类型:二居室
建筑面积:约54.25㎡—54.46㎡
房屋朝向:南
房屋租金:约2604元/月—2614.08元/月
小套型
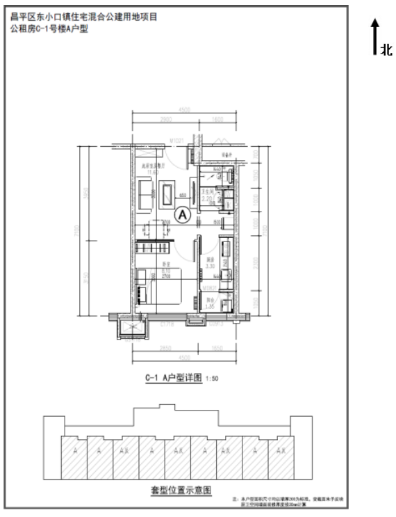
户型编号:A户型
居室类型:一居室
建筑面积:43.79㎡
房屋朝向:南
房屋租金:2101.92元/月
小套型
户型编号:D户型
居室类型:一居室
建筑面积:约42.71㎡—42.89㎡
房屋朝向:东/西
房屋租金:约2050.08元/月—2058.72元/月
小套型
户型编号:E户型
居室类型:一居室
建筑面积:约42.96㎡—43.02㎡
房屋朝向:东/西
房屋租金:约2062.08元/月—2064.96元/月
》》
